Your Tutor

Cover Website

IELTS B1T2
General Training

Listening

Reading

Writing

Speaking

Coming soon!

LISTENING SECTION

0%
5

Click "Start" to begin the test

Please fill your personal information correctly !

1 / 14

Test 2

LISTENING

SECTION 1        Question 1-10

Complete the notes below.

Write ONE WORD AND/OR A NUMBER for each answer.

Enquiry about joining Youth Council

Example

Name: Roger ____Brown____

Age: 18

Currently staying in a during the week

Postal address:  17, Street, Stamford, Lincs

Postcode:

Occupation: student and part-time job as a

Studying (major subject) and history (minor subject)

Hobbies: does a lot of , and is interested in the

On Youth Council, wants to work with young people who are

Will come to talk to the Elections Officer next Monday at pm

Mobile number:

 

 

 

2 / 14

SECTION 2        Question 11-20

New staff at theatre

Questions 11 and 12

Choose TWO letters, A-E.

Which TWO changes have been made so far during the refurbishment of the theatre?

A. Some rooms now have a different use.

B. A different type of seating has been installed.

C. An elevator has been installed.

D. The outside of the building has been repaired.

E. Extra seats have been added.

 

 

 

 

 

 

 

 

 

 

3 / 14

Question 13 and 14

Choose TWO letters, A-E.

Which TWO facilities does the theatre currently offer to the public?

A. rooms for hire

B. backstage tours

C. hire of customers

D. a bookshop

E. a café

 

 

 

 

 

 

 

 

 

 

 

 

 

 

 

 

 

4 / 14

Question 15 and 16

Choose TWO letters, A-E.

Which TWO workshops does the theatre currently offer?

A. sound

B. acting

C. making puppets

D. make-up

E. lighting

 

 

 

 

 

 

 

 

5 / 14

Question 17-20

Label the pain below.

Write the correct letter, A-G, next to Questions 17-20.

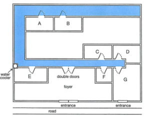
Ground floor plan of theatre

 box office                               

 theatre manager’s office   

 lighting box                         

 artistic director’s office      

 

 

 

 

 

 

 

 

 

6 / 14

SECTION 3                       Questions 21-30

Question 21-26

Choose the correct letter, A,B or C.

Rocky Bay field trip

21 What do the students agree should be included in their aims?

 

 

7 / 14

22 What equipment did they forget to take on the Field Trip?

8 / 14

23 In Helen’s procedure section, Colin suggests a change in

9 / 14

24 What do they say about the method they used to measure wave speed?

 

10 / 14

25 What mistake did Helen make when first drawing the map?

 

11 / 14

26 What do they decide to do next with their map?

12 / 14

Choose TWO letters, A-E.

Which TWO problems affecting organisms in the splash zone are mentioned?

A lack of water

B strong winds

C lack of food

D high temperatures

E large waves

 

 

 

 

 

 

 

 

 

 

 

13 / 14

Questions 29 and 30

Choose TWO letters, A-E.

Which TWO reasons for possible error will they include in their report?

A inaccurate records of the habitat of organisms

B influence on behaviour of organisms by observer

C incorrect identification of some organisms

D making generalisations from a small sample

E missing some organisms when counting

 

 

 

 

 

 

 

 

 

 

 

 

14 / 14

SECTION 4                       Question 31-40

Complete the notes below.

Write ONE WORD ONLY for each answer.

DESIGNING A PUBLIC BUILDING:

THE TAYLOR CONCERT HALL

Introduction

The designer of a public building may need to consider the building’s:

·       function

·       physical and context

·       symbolic meaning

 

Location and concept of the Concert Hall

On the site of a disused

Beside a

The design is based on the concept of a mystery

 

Building design

It’s approached by a for pedestrians

The building is the shape of a

One exterior wall acts as a large

 

In the auditorium:

·       the floor is built on huge pads made of

·       the walls are made of local wood and are in shape

·       ceiling panels and on walls allow adjustment of acoustics

 

Evaluation

Some critics say the style of the building is inappropriate

 

Your score is

0%

READING SECTION

0%
3

Click 'Start' to begin the test

Please fill your personal information correctly!

1 / 15

READING

SECTION 1                      Question 1-14

Read the text below and answer Question 1-6.

Sustainable School Travel Strategy

Over the last 20 years, the number of children being driven to school in England has doubled. National data suggests that one in five cars on the road at 8.50 am is engaged in the school run. Children are subject to up to 3.9 times more pollution in a car that is standing in traffic than when walking or cycling to school. Reducing cars around schools makes them safer places, and walking and cycling are better for health and the environment. It has been noted by teachers that children engaging in active travel arrive at school more alert and ready to learn.

The County Council has a strong commitment to supporting and promoting sustainable school travel. We collect data annually about how pupils get to school, and our report on the Sustainable School Travel Strategy sets out in detail what we have achieved so far and what we intend to do in the future. Different parts of the County Council are working together to address the actions identified in the strategy, and we are proud that we have been able to reduce the number of cars on the daily school run by an average of 1% in each of the last three years, which is equivalent to taking approximately 175 cars off the road annually, despite an increase in pupil numbers.

All schools have a School Travel Plan, which sets out how the school and the Council can collaborate to help reduce travel to school by car and encourage the use of public transport. Contact your school to find out what they are doing as part of their School Travel Plan to help you to get your child to school in sustainable, safe way.

Question 1-6

Do the following statements agree with the information given in the text?

 In boxes 1-6 on your answer sheet, write

              TRUE                     if the statement agrees with the information

              FALSE                  if the statement contradicts the information

              NOT GIVEN       if there is no information on this

1. More children are injured when walking or cycling to school than when travelling by car.

2 / 15

2. Children who are driven to school are more ready to learn than those who walk or cycle.

 

3 / 15

3. Every year the Council gathers information about travel to schools.

4 / 15

4. The Council is disappointed with the small reduction in the number of cars taking children to school.

 

5 / 15

5. The number of children in schools has risen in recent years.

6 / 15

6. Parents can get help with paying for their children to travel to school by public transport.

7 / 15

Read the text below and answer Question 7-14.

Flu: the facts

A. Flu (influenza) is an acute viral respiratory infection. It spreads easily from person to person: at home, at school, at work, at the supermarket or on the train.

B. It gets passed on when someone who already has flu coughs or sneezes and is transmitted through the air by droplets, or it can be spread by hands infected by the virus.

C. Symptoms can include fever, chills, headache, muscle pain, extreme fatigue, a dry cough, sore throat and stuffy nose. Most people will recover within a week but flu can cause severe illness or even death in people at high risk. It is estimated that 18,500 – 24,800 deaths is England and Wales are attributable to influenza infections annually.

D. Vaccination is the most effective way to prevent infection. Although anyone can catch flu, certain people are at greater risk from the implications of flu, as their bodies may not be able to fight the virus. If you are over 65 years old, or suffer from asthma, diabetes, or certain other conditions, you are considered at greater risk from flu and the implications can be serious. If you fall into one of these ‘at-risk’ groups, are pregnant or a carer, you are eligible for a free flu vaccination.

E. If you are not eligible for a free flu vaccination, you can still protect yourself and those around you from flu by getting a flu vaccination at a local pharmacy.

F. About seven to ten days after vaccination, your body makes antibodies that help to protect you against any similar viruses that may infect you. This protection lasts about a year.

G. A flu vaccination contains inactivated, killed virus strains so it can’t give you the flu. However, a flu vaccination can take up to two weeks to begin working, so it is possible to catch flu in this period.

H. A flu vaccination is designed to protect you against the most common and potent strains of flu circulating so there is a small chance you could catch a strain of flu not contained in the flu vaccine.

I. The influenza virus is constantly changing and vaccines are developed to protect against the predicted strains each year so it is important to get vaccinated against the latest strains.

Speak to your GP or nurse today to book your flu vaccination.

Question 7-14

The text on page 9 has nine section, A-I.

Which sections contain the following information?

Write the correct letter, A-I, in boxes 7-14 on your answer sheet.

NB You may use any answer more than once

examples of people who are likely to be particularly badly affected by flu 

how to get a vaccination if you choose to pay for it 

why new vaccines become available

how long a vaccine remains effective 

reference to the possibility of catching a different type of flu from the ones in the vaccine

categories of people who do not have to pay for vaccination 

information about what a vaccine consists of 

signs that you might have flu 

 

 

 

 

 

 

 

 

 

 

 

 

 

 

 

 

 

 

 

 

 

 

 

 

 

 

 

 

 

 

 

 

 

 

 

 

 

 

 

 

 

 

 

 

 

8 / 15

SECTION 2        Questions 15-27

Read the text below and answer Question 15-22.

Tips for giving an effective business presentation

Preparation

Get someone else to evaluate your performance and highlight your best skills. For example, go through your presentation in front of a colleague or relative. Think about who your audience is and what you want them to get out of the presentation. Think about content and style.

Go into the presentation room and try out any moves you may have to make, e.g. getting up from your chair and moving to the podium. Errors in the first 20 seconds can be very disorientating.

Familiarise yourself with the electronic equipment before the presentation and also have a backup plain in mind, should there be an unexpected problem like power cut.

Dealing with presentation nervousness

A certain amount of nervousness is vital for a good presentation. The added adrenaline will keep your faculties sharp and give your presentation skills extra force. This can, however, result in tension in the upper chest. Concentrate on your breathing. Slow it right down and this will relax you. Strangely, having something to pick up and put down tends to help you do this.

It may seem an odd idea, but we seem to feel calmer when we engage in what’s referred to as a displacement activity, like clicking a pen or fiddling with jewellery. A limited amount of this will not be too obvious and can make you feel more secure at the start.

Interacting with your audience

Think of your presentation as a conversation with your audience. They may not actually say anything, but make them feel consulted, questioned, challenged, then they will stay awake and attentive.

Engage with your present audience, not the one you have prepared for. Keep looking for reactions to your ideas and respond to them. If your audience doesn’t appear to be following you, find another way to get your ideas across. If you don’t interact, you might as well send a video recording of your presentation instead!

Structuring effective presentations

Effective presentations are full of examples. These help your listeners to see more clearly what you mean. It’s quicker and more colourful. Stick to the point using three or four main ideas. For any subsidiary information that you cannot present in 20 minutes, try another medium, such as handouts.

End as if your presentation has gone well. Do this even if you feel you’ve presented badly. And anyway a good finish will get you some applause – and you deserve it!

 

Questions 15-22

Complete the sentences below.

Choose NO MORE THAN TWO WORDS from the text for each answer.

Write your answer in boxes 15-22 on your answer sheet.

Practising your presentation on a or a family member is helpful.

Be prepared for a problem such as a .

One way to overcome pre-presentation nerves is to make your  less rapid.

It is acceptable to do something called a  at the start of the presentation to reassure you.

Your presentation should be like a  with the people who have come to hear you.

Check constantly for to the points you are making.

Make sure you use plenty of  to communicate your message effectively.

To keep the presentation short, use things like  to provide extra details.

9 / 15

Read the text below and answer Questions 23-27.

How to get a job in journalism

You can get a good qualification in journalism, but what employers actually want is practical, rather than theoretical, knowledge. There’s no substitute for creating real stories that have to be handed in by strict deadlines. So write for your school magazine, then maybe try your hand at editing. Once you’ve done that for a while, start requesting internships in newspapers in the area. These are generally short-term and unpaid, but they’re definitely worthwhile, since, instead of providing you with money, they’ll teach you the skills that every twenty-first century journalist has to have, like laying out articles, creating web pages, taking good digital pictures and so on.

Most reporters keep a copy of every story they’ve had published, from secondary school onwards. They’re called cuttings, and you need them to get a job – indeed a few impressive ones can be the deciding factor in whether you’re appointed or not. So start creating a portfolio now that will show off your developing talent.

It seems obvious – research is an important part of an effective job hunt. But it’s surprising how many would-be journalists do little or none. If you’re thorough, it can help you decide whether the job you’re thinking about applying for is right for you. And nothing impresses an editor more than a applicant who knows a lot about the paper.

There are two more elements to an application – your covering letter and curriculum vitae. However, your CV is the thing that will attract an editor’s attention first, so get it right. The key words are brevity, (no more than one page) accuracy (absolutely no spelling or typing errors) and clarity (it should be easy to follow).

In journalism, good writing skills are essential, so it’s critical that the style of your letter is appropriate. And, make sure it conveys your love of journalism and your eagerness to do the work.

 

Questions 23-27

Complete the flow chart below.

Choose ONE WORD ONLY from the text for each answer.

Write your answer in boxes 23-27 on your answer sheet.

Getting a job in journalism

Gain relevant experience, e.g. writing articles to meet specific deadlines.

Apply for temporary with local papers and acquire the extra you’ll need.

Build up a set of in a portfolio, displaying how your writing ability has progressed over time.

Take time to do detailed first, before applying for a post with a paper.

Once you decide to apply, make sure your CV is short, makes sense and is without of any kind.

Write your covering letter, paying particular attention to the style.

 

 

 

 

 

 

 

 

 

 

 

 

 

 

 

 

 

 

10 / 15

SECTION 3                      Question 28-40

Question 28-35

The text on pages 16 and 17 has eight sections, A-H.

Choose the correct heading for each section from the list of headings below.

Write the correct number i-x, in boxes 28-35 on your answer sheet.

List of Headings

i          Why Perriss chose a career in supermarkets

ii        Preparing for customers to arrive

iii      Helping staff to develop

iv       Demonstrating a different way of organising a store

v         The benefit of accurate forecasting

vi       Keeping everything running as smoothly as possible

vii     Making sure the items on sale are good enough

viii   Noticing when customers need assistance

ix       How do staff feel about Perriss?

x         Perriss’s early career

 Section A

 Section B

 Section C

 Section D

 Section E

 Section F

 Section G

 Section H

 

 

 

 

 

 

 

 

 

 

 

 

 

 

 

 

 

11 / 15

What is it like to run a large supermarket?

Jill Insley finds out

A

You can’t beat really good service. I’ve been shopping in the Thamesmead branch of supermarket chain Morrisons, in south-east London, and I’ve experienced at first hand, the store’s latest maxim for improving the shopping experience – help, offer, thank. This involves identifying customers who might need help, greeting them, asking what they need, providing it, thinking them and leaving them in peace. If they don’t look like they want help, they’ll be left alone. But if they’re standing looking lost and perplexed, a member of staff will approach them. Staff are expected to be friendly to everyone. My checkout assistant has certainly said something to amuse the woman in front of me, she’s smiling as she leaves. Adrian Perriss, manager of the branch, has discussed the approach with each of his 387 staff. He says it’s about recognising that someone needs help, not being a nuisance to them. When he’s in another store, he’s irritated by someone saying, ‘Can I help you?’ when he’s only just walked in to have a quick look at the products.

B

How anyone can be friendly and enthusiastic when they start work at dawn beats me. The store opens at 7 am, Monday to Saturday, meaning that some staff, including Perriss, have to be here at 6 am to make sure it’s clean, safe and stocked up for the morning rush. Sometimes he walks in at 6 am and thinks they’re never going to be ready on time – but they always are. There’s so much going on overnight – 20 people working on unloading three enormous trailers full of groceries.

C

Perriss has worked in supermarkets since 1982, when he became a trolley boy on a weekly salary of £76, ‘It was less money that my previous job, but I loved it. It was different and diverse. I was doing trolleys, portering, bread, cakes, dairy and general maintenance.’ After a period in the produce department, looking after the fruit and vegetables, he was made produce manager, then assistant store manager, before reaching the top job in 1998. This involve intensive training and assessment through the company’s future store manager programme, learning how to analyse and prioritise sales, wastage, recruitment and many other issues. Perrriss’ first stop as store manager was at a store which was closed soon afterwards – though he was not to blame.

D

Despite the disappointing start, his career went from strength to strength and he was put in charge of launching new stores and heading up a ‘concept’ store, where the then new ideas of preparing and cooking pizzas in store, and having a proper florist, and fruit and vegetable ‘markets’ were trialled. All Morrisons’ managers rom the whole country spent three days there to see the new concept. ‘That was hard work,’ he says, ‘long days, seven days a week, for about a year.’

E

Although he oversees a store with a large turnover, there is a strongly practical aspect to Perrisss’s job. As we walk around, he chats to all the staff while checking the layout of their counters and the quality of the produce. He examines the baking potato shelf and rejects three, one that has split virtually in half and two that are beginning to go green. He then pulls out a lemon that looks fine to me. When I ask why, he picks up a second lemon and says: ‘Close your eyes and just feel and tell me which you would keep.’ I do and realise that while one is firm and hard, the other is going a bit squashy.

F

Despite eagle-eyed Perriss pulling out fruit and veg that most of us would buy without a second thought, the wastage each week is tiny: produce worth £4,200 is marked down for a quick sale, and only £400-worth is scrapped. This, he explains, is down to Morrisons’ method of ordering, still done manually rather than by computer. Department heads know exactly how much they’ve sold that day and how much they’re likely to sell the next, based on sales records and allowing for influences such as the weather.

G

Perriss is in charge of 1,000 man-hours a week across the store. To help him, he has a key team of four, who each have direct responsibility for different departments. He is keen to hear what staff think. He recently held a ‘talent’ day, inviting employees interested in moving to a new job within the store to come and talk to him about why they thought they should be promoted, and discuss how to go about it. ‘We had twenty-three people come through the door, people wanting to talk about progression,’ he says. ‘What do they need to do to become a supervisor? Twenty-three people will be better members of staff as a result of that talk.’

H

His favourite department is fish, which has a 4 m-long counter run by Debbie and Angela, who are busy having a discussion about how to cook a particular fish with a customer. But it is one of just 20 or so departments around the store and Perriss admits the pressure of making sure he knows what’s happening on them all can be intense. ‘You have to do so much and there could be something wrong with every single one, every day,’ he says. ‘You’ve got to minimise those things and shrink them into perspective. You’ve got to love the job.’ And Perriss certainly does.

 

Question 36-40

Do the following statements agree with the information given in the text on pages 16 and 17?

In boxes 36-40 on your answer sheet, write

              TRUE                  if the statement agrees with the information

              FALSE                 if the statement contradicts the information

              NOT GIVEN      if there is no information on this

36 Perriss encourages staff to offer help to all customers.

12 / 15

37 Perriss is sometimes worried that customers will arrive before the store is ready for them.

 

 

13 / 15

38 When Perriss first became a store manager, he knew the store was going to close.

14 / 15

39 On average, produce worth £4,200 is throw away every week.

 

15 / 15

40 Perriss was surprised how many staff asked about promotion on the ‘talent’ day.

 

Your score is

0%

WRITING SECTION

0

Click 'Start' to begin the test

Please fill your personal information correctly !

1 / 2

WRITING

WRITING TASK 1

You should spend about 20 minutes on this task.

You recently attended a meeting at a hotel. When you returned home, you found you had left some important papers at the hotel.

 

Write a letter to the manager of the hotel. In your letter

·       Say where you think you left the papers

·       Explain why they are so important

·       Tell the manager what you want him/her to do

Write at least 150 words.

You do NOT need to write any addresses.

Begin your letter as follows:

Dear Sir or Madam,

2 / 2

WRITING TASK 2

You should spend about 40 minutes on this task.

Write about the following topic:

Some people say that in all levels education, from primary schools to universities, too much time is spent on learning facts and not enough on learning practical skills.

 

Do you agree or disagree?

Give reasons for your answer and include any relevant examples from your own knowledge or experience.

Write at least 250 words.

Your score is

Comments